West Burton Methodist Chapel, West Burton

For Sale £96,000 (Freehold)

DESCRIPTION

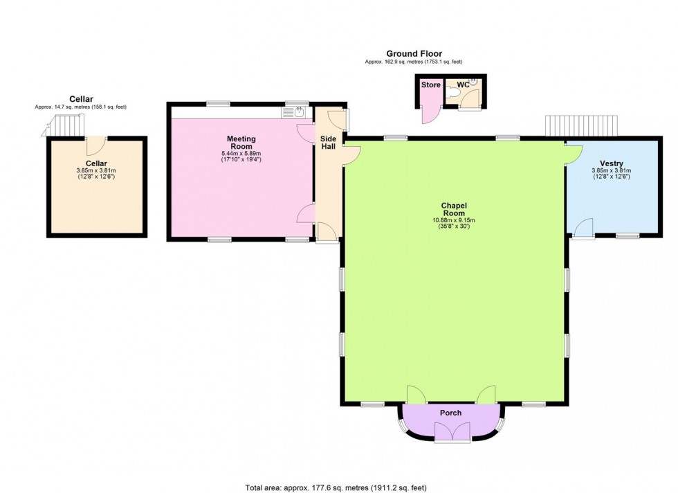
OFFERED FOR SALE FOR COMMUNITY USE ONLY. A Detached Methodist Chapel dating back to 1898 within the heart of West Burton overlooking the village green. Current Use Class F1 (Learning and Non-residential Institutions). The Property comprises: Entrance Porch, Chapel Room, Vestry, Meeting Room, Side Hall, Outside WC, Cellar, Front Garden, Rear Yard. Mains electricity, water and drainage. Oil Fired Central Heating. EER N/a.

ENTRANCE PORCH

Pine panelling to walls, fitted bookshelves, radiator. External double timber doors to front. Doors to Chapel Room. Leaded stained glass windows to front.

CHAPEL ROOM

Vaulted pine boarded ceiling, pine panelling to walls, 6 radiators, fitted pews and pulpit, organ, leaded stained glass windows to front, side and rear. Doors to Entrance Porch, Vestry and Side Hall.

VESTRY

Radiator, original fireplace surround, loft hatch, pine panelling to walls, fitted bench, GRANT oil fired boiler. External timber door to front. Door to Chapel Room. Sash window to front.

SIDE HALL

Pine panelling to walls, electric meter, fuse board, cold water tap. External timber doors to front and rear. Doors to Chapel Room and Meeting Room.

MEETING ROOM

Pine panelling to walls, stainless steel single drainer sink unit with electric hot water heater, laminate work top, radiator. Leaded stained glass windows to front. Windows to rear. Doors to Side Hall.

OUTSIDE

Lawn and shrubs behind original wrought iron railings.

Small Rear Yard with small stone built store and stone built WC with wash hand basin with electric hot water heater, wc and electric bar heater. Plastic oil tank. Lights.

CELLAR

Stone flagged floor, light.

SERVICES

Mains electricity, water and drainage. Oil fired central heating.

GENERAL INFORMATION

Viewing - By appointment with Norman F. Brown.

Tenure - We understand that the property is Freehold. The title register is NYK 376470.

Local Authority - North Yorkshire Council – Tel: 0300 1312131
www.northyorks.gov.uk

Property Reference – 18771517

Particulars Prepared – February 2026.

IMPORTANT NOTICE

These particulars have been produced in good faith to give an overall view of the property. If any points are particularly relevant to your interest, please ask for further information or verification, particularly if you are considering travelling some distance to view the property.

All interested parties should note:

i. The particulars are set out as a general outline only for the guidance of intended purchasers and do not constitute an offer or contract or any part thereof.

ii. All measurements, areas or distances are given only as a guide and should not be relied upon as fact.

iii. The exterior photograph(s) may have been taken from a vantage point other than the front street level. It should not be assumed that any contents/furnishings/furniture etc. are included in the sale nor that the property remains as displayed in the photographs.

iv. Services or any appliances referred to have not been tested and cannot be verified as being in working order. Prospective buyers should obtain their own verification.

FREE MARKET APPRAISAL

We will be pleased to provide an unbiased and professional market appraisal of your property without obligation, if you are thinking of selling.


FREE IMPARTIAL MORTGAGE ADVICE

CALL TODAY TO ARRANGE YOUR APPOINTMENT

Our qualified mortgage and financial advisor will be pleased to advise you on the wide range of mortgages available from all of the mortgage lenders without charge or obligation.

YOUR HOME IS AT RISK IF YOU DO NOT KEEP UP REPAYMENTS ON A MORTGAGE OR OTHER LOAN SECURED ON IT

A life assurance policy may be required. Written quotation available upon request.

AML POLICY

AML Policy (When an offer is accepted):

In accordance with The Money Laundering Regulations 2017, we are required by law to:
•Verify the identity of all buyers
•Check the Politically Exposed Persons and
•Check the Sanctions registers.
•Verify proof of and source of funds for the purchase - What form that takes depends on your position, but we ultimately need you to provide to us (in the office or via email) evidence of the funding you have in place for the purchase price. That may include proof of deposit, an Agreement in Principle from a lender or if you are a cash buyer, a Bank Statement.

The cost of the Identity verification, PEP & Sanctions register checks are £15 for one person and £25 for two people. We will send you a link to the Guild 365 app (which you will need to download) to complete this.

  • REDUNDANT METHODIST CHAPEL
  • OFFERED FOR SALE FOR COMMUNITY USE ONLY
  • MAINS ELECTRICITY, WATER AND DRAINAGE
  • OIL FIRED CENTRAL HEATING
Floorplan for West Burton Methodist Chapel, West Burton
Similar Property

Get an instant online valuation

Find out how much your property is worth