Building Plot, Reeth Road, Richmond

For Sale £195,000 (Freehold)

6 4 2

DESCRIPTION

A Rare Opportunity to purchase a Richmond building plot for a pair of Traditionally Styled 3 Bedroom Semi Detached Houses with Parking. Mains Services Nearby.

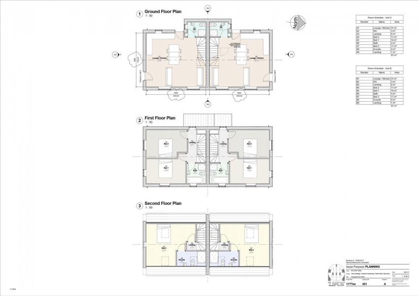
PLANNING PERMISSION

Planning Permission Decision No. 14/00330/OUT granted on 24 November 2014 for a pair of semi detached houses on land adjacent to 45 Reeth Road, Richmond, North Yorkshire, DL10 4EX.

Approval of Reserved Matters Decision No. 17/00283/AORM granted on 15 August 2017
The development shall be carried out precisely in accordance with the approved drawings and particulars as set out below:

a) application forms and certificates
b) site location plan
c) 3d views : drawing no. 17TTee/003/A dated 19th June, 2017
d) proposed elevations : drawing no. 17TTee/002/B dated 19th June, 2017
e) proposed floor plans : drawing no. 17TT33/001/A dated 19th June, 2017
f) block plan showing parking : drawing no. 16RTee/102/B dated 19th June, 2017
g) proposed site plan : drawing no. 17TTee/100/B dated 19th June, 2017

1 August 2019 - Discharge of Reserved Matters Condition No’s 3, 4 and 5 regarding the foundations and samples of the construction materials to be used.

Further information is available upon request or by visiting Richmondshire District Council’s Planning Portal

https://planning.richmondshire.gov.uk/online-applications/search.do?action=simple&searchType=Application

The architects drawings provides for 87sq m of accommodation per property to comprise:

Ground Floor.

Open Plan Living Room/Kitchen
WC

First Floor.

2 Bedrooms

Bathroom/WC

Second Floor.

Bedroom
En-Suite Shower Room/WC

Parking Spaces for 2 cars per property

GENERAL INFORMATION

Viewing - By appointment with Norman F. Brown.

Tenure - The property is Freehold. The title register is NYK 474793.

Local Authority - North Yorkshire Council – Tel: 0300 1312131
www.northyorks.gov.uk

Property Reference – 18359165.

Particulars Prepared – July 2023.

IMPORTANT NOTICE

These particulars have been produced in good faith to give an overall view of the property. If any points are particularly relevant to your interest, please ask for further information or verification, particularly if you are considering travelling some distance to view the property.

All interested parties should note:

i. The particulars are set out as a general outline only for the guidance of intended purchasers and do not constitute an offer or contract or any part thereof.

ii. All measurements, areas or distances are given only as a guide and should not be relied upon as fact.

iii. The exterior photograph(s) may have been taken from a vantage point other than the front street level. It should not be assumed that any contents/furnishings/furniture etc. are included in the sale nor that the property remains as displayed in the photographs.

iv. Services or any appliances referred to have not been tested and cannot be verified as being in working order. Prospective buyers should obtain their own verification.

FREE MARKET APPRAISAL

We will be pleased to provide an unbiased and professional market appraisal of your property without obligation, if you are thinking of selling.


FREE IMPARTIAL MORTGAGE ADVICE

CALL TODAY TO ARRANGE YOUR APPOINTMENT

Our qualified mortgage and financial advisor will be pleased to advise you on the wide range of mortgages available from all of the mortgage lenders without charge or obligation.

YOUR HOME IS AT RISK IF YOU DO NOT KEEP UP REPAYMENTS ON A MORTGAGE OR OTHER LOAN SECURED ON IT

A life assurance policy may be required. Written quotation available upon request.

  • RARE RICHMOND BUILDING PLOT
  • PLANNING PERMISSION FOR A PAIR OF 3 BEDROOM SEMI DETACHED HOUSES
  • TRADITIONALLY STYLED
  • 2 PARKING SPACES PER PROPERTY
  • MAINS SERVICES NEARBY

Get an instant online valuation

Find out how much your property is worth